For my project I chose to focus on the pushing and pulling of elements from an implied space. When working on the collage portion of this assignment, I noticed how depth played a large role in the facades. When translating this into my final house design I drew inspiration from a precedent study in Philadelphia known as Ghost House by Venturi which defines the outlines of a house no longer exists today. A similar technique can be found with the use of frames in my project which defines a central volume. From these frames I then chose to push and pull elements from the frame to create depth.
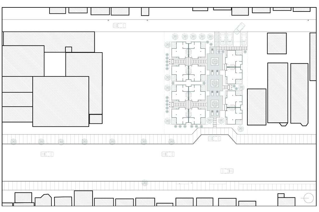
In addition, the sloped roof was derived from my collage model and allowed for a living space with a large ceiling and created a feeling of relief from the other compressed interior spaces. Furthermore, I designed the interior with an open plan to allow maximum use of the floor space. Finally, when aggregating the houses on site, I studied where light would enter the house and laid the houses out accordingly. I also strived to achieve a sense of community within the site which I managed to create with a central gathering space and units facing one another.






